Я, конечно, знаю, что у меня здесь собралась прекрасная компания любителей душевных домов, интерьеров, сделанных с любовью к жизни и старине.

Внешний вид дома
Но не только милыми домами едины мы. Такой как дом ниже, это скорее концептуальная архитектура, такая большая поделка, в которой можно жить и она отражает суть, идею, образ жизни хозяина дома.

Внешний вид дома
Этот дом находится в Тверской области и построен он был в 2010 году. Находится он в живописной местности, из окон видна церковь 17 века и река.
Этот вид дома относится к стилю "барнхаус", что в переводе и означает "амбар".
Это современный стиль, который зародился в 20-21 веке в Западной Европе, когда люди начали переселяться из квартир в сельскохозяйственные постройки, чтобы больше проводить времени на природе и уделять больше времени животным.
В итоге, должен был получиться дом без всех архитектурных излишеств, никакой декоративности.

Фасад дома
Снаружи дом отделан вертикальной доской в нахлест и окрашен в черный цвет. Террасы дома сделаны из сибирской сосны.
Вся еще изюминка в том, что дом закрывается ставнями наглухо во время отсутствия хозяев. И тогда, со стороны, он должен казаться не тем, чем является на самом деле.
Общая площадь всего дома 90 м2.
Интересно, что сам дом и хозяйственная постройка вместе образуют небольшой закрытый дворик, смотрящий в сторону дороги.


Фрагмент фасада дома

Внешний вид дома и хозяйственной постройки

Терраса дома

Внешний вид дома
Интерьер дома
Весь интерьер дома очень аскетичный, пол, стены и потолок целиком обшиты листами ОСП и выкрашены в белый цвет, а пол наливной с подогревом.

Панорамное окно в гостиной

Интерьер первого этажа

Интерьер первого этажа

Интерьер первого этажа

Интерьер первого этажа

Санузел

Санузел

Интерьер второго этажа

Интерьер второго этажа
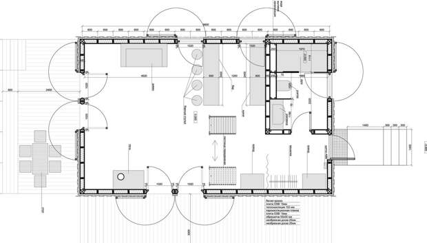
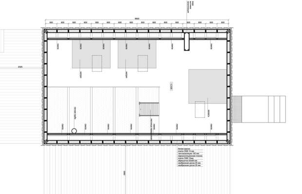
Чертежи дома
Дом как студия с открытой планировкой, лишь абстрактно разделен на функциональные зоны.
На первом этаже зоны прихожей, кухни, гостиной, столовой зоны у барной стойки. Большая, комфортная столовая зона вынесена на террасу. На первом этаже еще есть изолированный санузел.
На втором этаже располагаются только спальные места в одном общем пространстве с выходом на балкон.
Лестница - передвижная, мобильная.
По большому счету, этот дом предназначен для кратковременного проживания. Только для отдыха и уединения. В этом случае и не нужно иметь здесь массу вещей.

План первого этажа

План второго этажа

Разрез дома
Фото с сайта rehouz.info
Свежие комментарии